Hér eru myndir af glæsilegu Hrím 108 heilsárshúsi sem reist var reist í Grímsnesi haustið 2025.
Húsið er með tveimur hliðarbyggingum og er grunnflötur hússins því samtals um 137fm að stærð að utanmáli. Húsið er reist á steypta plötu með gólfhita.
Húsið er klætt að utan með sérunnu lerki (iron sulfate) sem mun gefa húsinu fallegan og náttúrlegan gráan lit. Gluggar og hurðir eru uppfærðir í ál/tré og er þakefni og þakkantur úr áli einnig. Rennihurð er í miðju alrýminu.
Hliðarbyggingar hússins eru bæði sjálfstæð gestaherbergi með sérinngangi ásamt klósetti og sturtu.
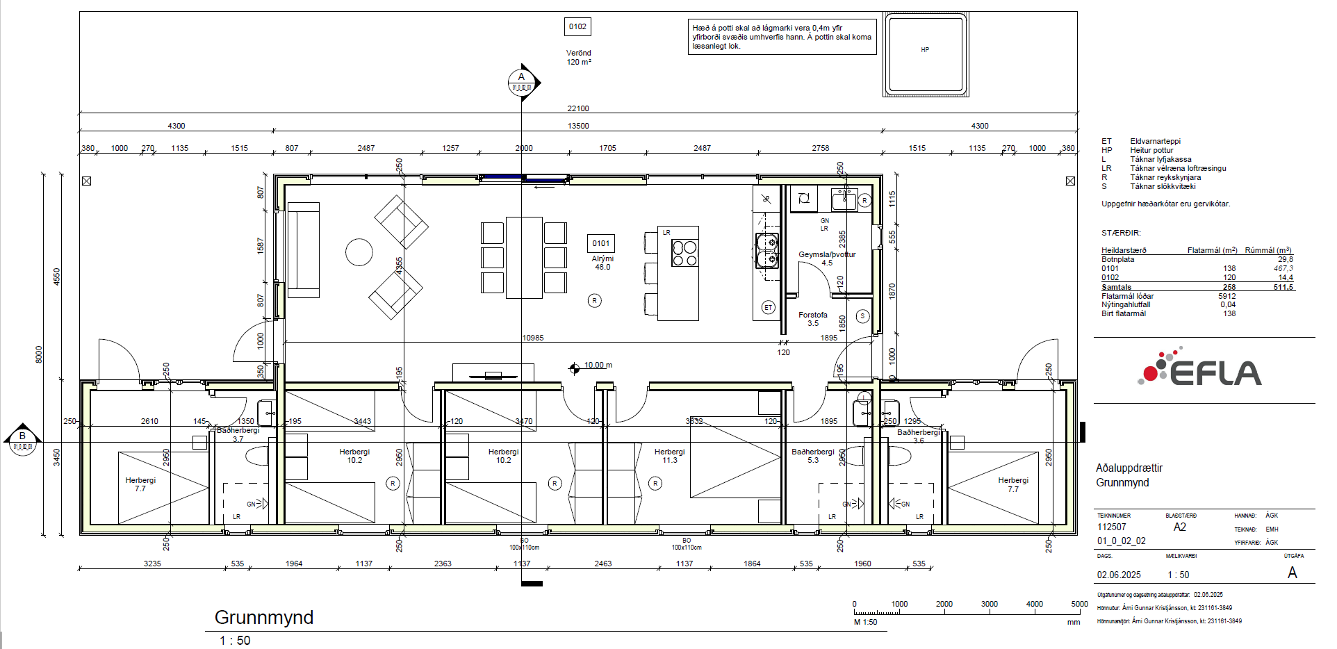
Hér fyrir neðan er grunnplan fyrir húsið:
Landshús sá um uppsetningu hússins. Húsið var reist og gert tilbúið að utan, að innan var það einangrað, rakasperra sett ásamt lagnagrind. Verkið gekk mjög vel og tók samtals um 5 vikur eftir að platan var tilbúin. Húsið var því tilbúið fyrir raf- og pípulögn að því loknu.
Húsið er virkilega fallegt og við óskum eiganda til hamingju með nýja húsið.
