Klettar – Heilsárshús
– Hagkvæm leið til þess að reisa traust hús á draumastaðnum
Klettar - Grunnhús 65
Klettar: Húsið er að grunnstærð 65fm og þar að auki er 35fm svefnloft.
Klettar - Stærra 80
Klettar: Húsið er að grunnstærð 80 fm og þar að auki er 49 fm svefnloft.
Sýnishorn af Klettahúsum sem reist hafa verið á Íslandi
Fréttir
Hrím – Grímsnes – 2025/2026
Hér eru myndir af glæsilegu Hrím 108 heilsárshúsi sem reist var reist í Grímsnesi haustið 2025. Húsið er með tveimur hliðarbyggingum og er grunnflötur hússins því samtals um 137fm að stærð að utanmáli. Húsið er reist á steypta plötu með gólfhita. Húsið er klætt að...
Klettar 65 – Bílskúr + Gestaálma 2025
Hér er á ferðinni áhugavert Klettar 65 hús. Húsið er skráð 99,3 fm að stærð og er útfært sem staðlað Klettar 65 ásamt 10 stækkunum. Húsið er staðsett á fallegum stað á Suðurlandi og kemur sem viðbót við annað hús sem fyrir er á staðnum og er af gerðinni Klettar 80. ...
Jöklar – Íslenska húsið á Suðurströnd
Hér eru myndir af fallegu Jöklahúsi - Íslenska húsið - sem reist var árið 2020. Húsið samanstendur af grunnhúsi + 2 stækkunum ásamt gluggum og hurðum að vali kaupanda. Hér er blandað saman gamla byggingalaginu og stórum gluggum sem færir húsið í nútímalegri búning. ...
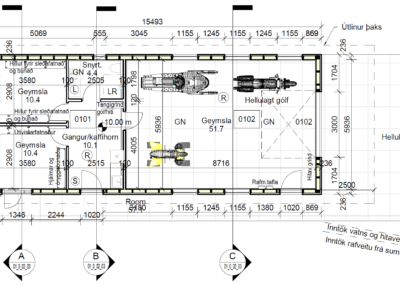
Fjallabyggð – Þjónustuhús á tjaldsvæði
Jöklar - Þjónustuhús á tjaldsvæði - Reist í Fjallabyggð Hér eru myndir af Jöklahúsi sem reist var árið 2021. Um er að ræða Jöklahús (Burst) með 3 stækkunum og gluggum og hurðum eins og óskað var eftir. Húsið þjónar þeim tilgangi að vera þjónustuhús fyrir...
Raðhús í Búðardal
Reitir - Raðhús - Reist í Búðardal 2023 Hér eru myndir sem teknar voru af raðhúsum frá okkur í Búðardal, sem reist voru árið 2023. Um er að ræða verkefni í samstarfi við sveitarfélagið en Búðardalur er einn af mörgum byggðarkjörnum landsins þar sem skortur er á...

