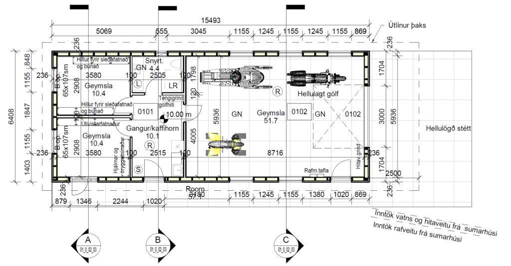
Hér er á ferðinni áhugavert Klettar 65 hús. Húsið er skráð 99,3 fm að stærð og er útfært sem staðlað Klettar 65 ásamt 10 stækkunum. Húsið er staðsett á fallegum stað á Suðurlandi og kemur sem viðbót við annað hús sem fyrir er á staðnum og er af gerðinni Klettar 80. Húsið er með lerkiklæðningu og eru gluggar og hurðir með ál/tré uppfærslu. Stóra hurðin á suðurhliðinni er rennihurð.
Húsið er sett á steypta plötu og er hugsað sem aðstöðuhús/bílskúr með aflokaðri gestaálmu.
Landshús sá um uppsetningu hússins og gekk uppsetningin hratt og vel. Við óskum eigendum til hamingju með glæsilegt hús sem verður skemmtileg viðbót við núverandi aðstöðu í sveitinni.
